creative space for creative minds

A stunning self contained mews office building redefined through a considerate refurbishment concentrating on bringing back to life the external historic detailing.

Internally a modern and bespoke high level internal specification delivers a creative office building.

photo - external 1
photo - internal 1
photo - kitchen
photo - fittings
photo - internal 2
photo - internal 3

Amenities.

  • Self Contained Offices

  • Fully refurbished

  • Open plan offices

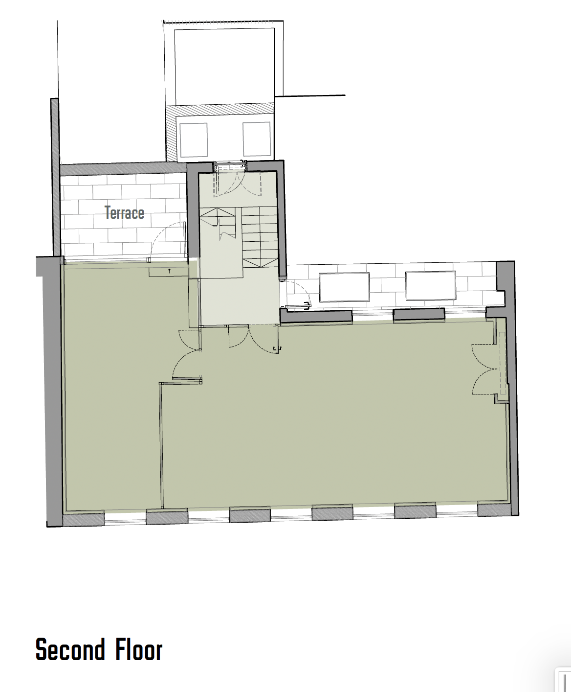
  • Second floor terrace

  • Air conditioning

  • New LED Lighting

  • Perimeter Trunking

  • Wood floors

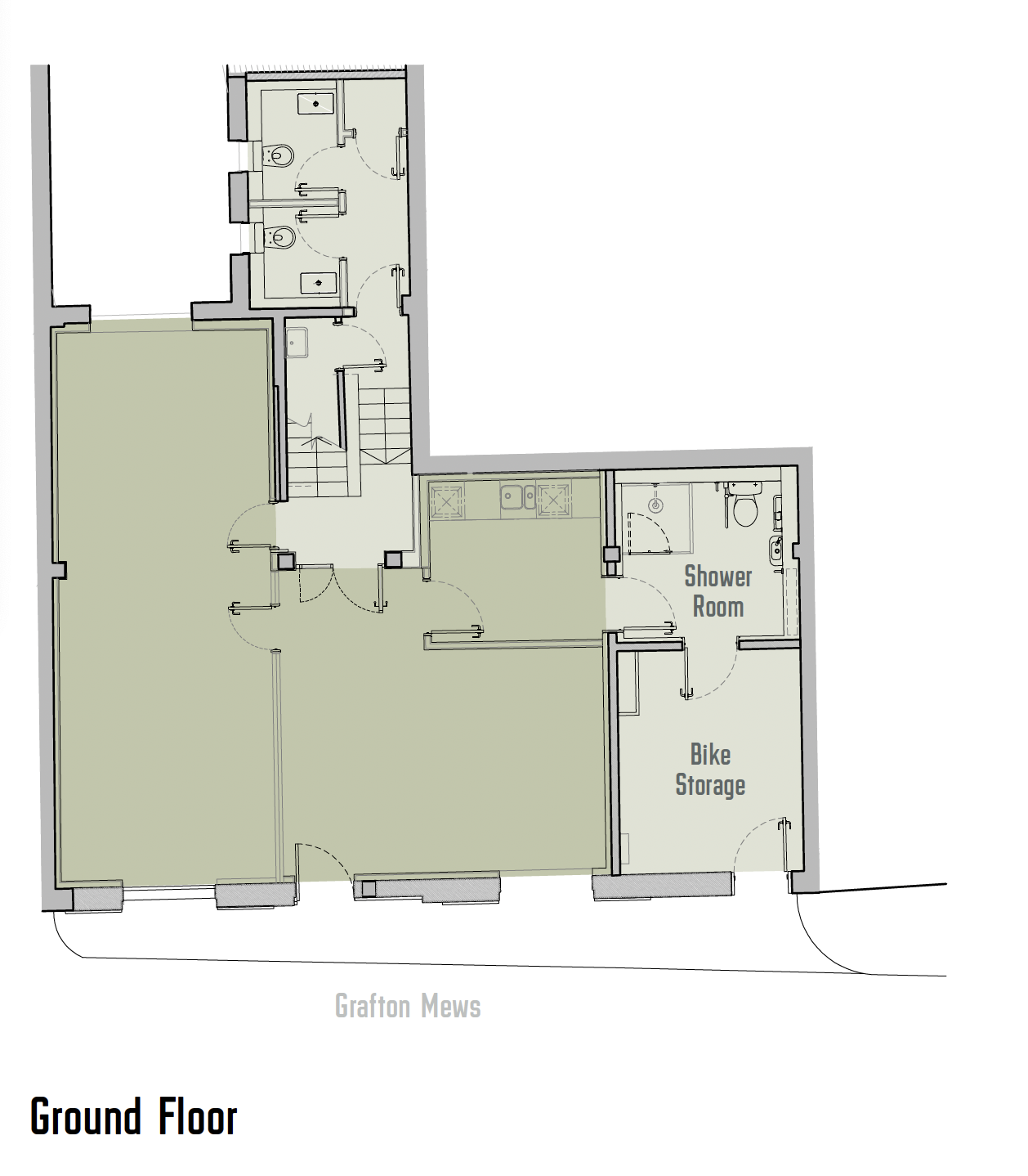
  • New WC’s

  • Shower

  • Secure bike racks and lockers

  • Fibre provisions and fully cabled

availability

floor sq ft sq m
Second Floor 766 71
First Floor 983 91
Ground Floor 776 72
Total (approx.) 2525 234

The floor areas are subject to measurement upon completion of the works

floor plates

Ground floor

776 sq ft

First floor

983 sq ft

Second floor

766 sq ft